9033 Greenridge Dr

📍 Richmond Heights, MO

UNDER CONSTRUCTION
Coming Fall 2026
BEDROOMS
5
BATHROOMS
5.5
SQUARE FEET
3,515

Floor Plans

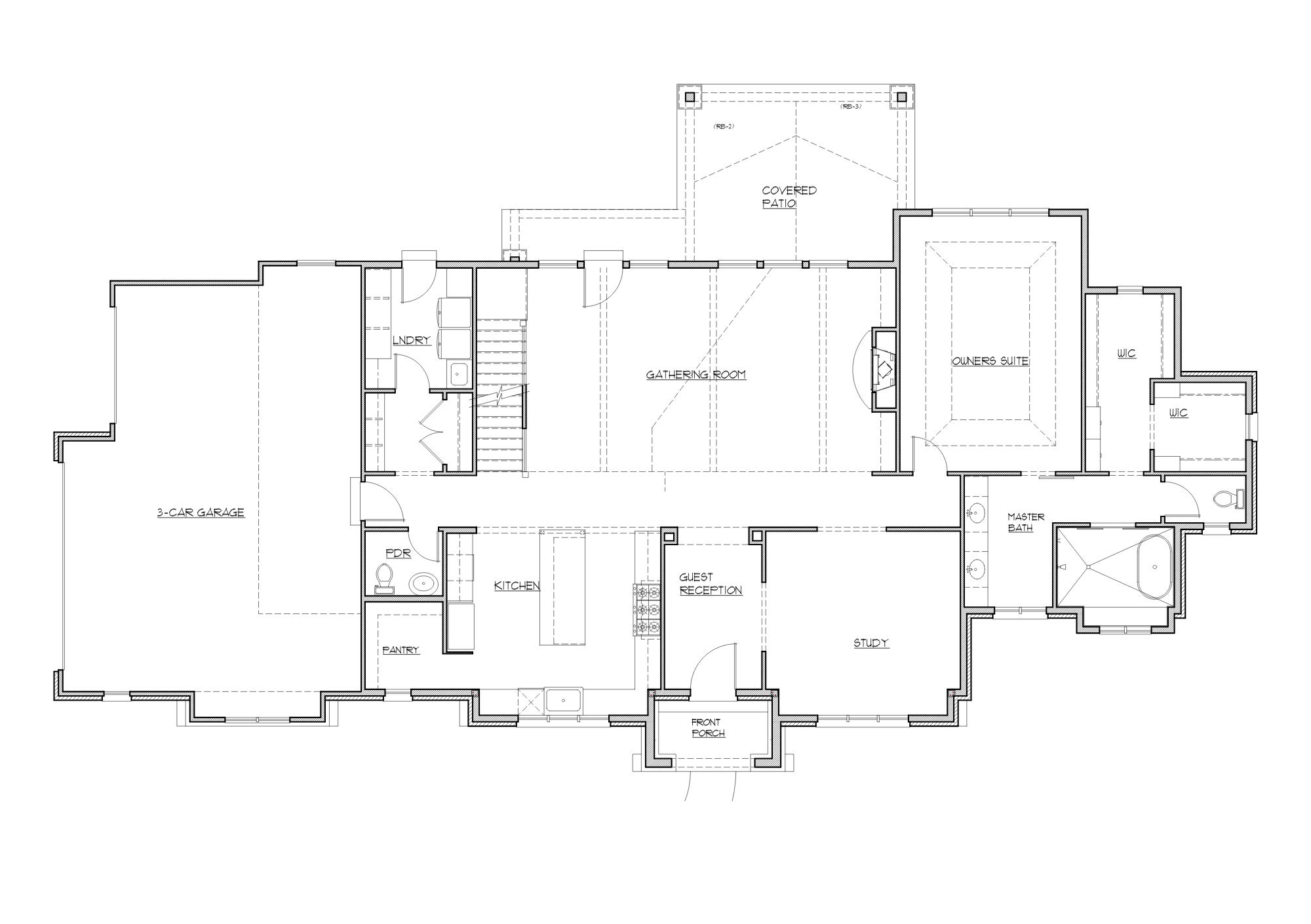
Main Level

Main Level Floor Plan

Upper Level

Upper Level Floor Plan

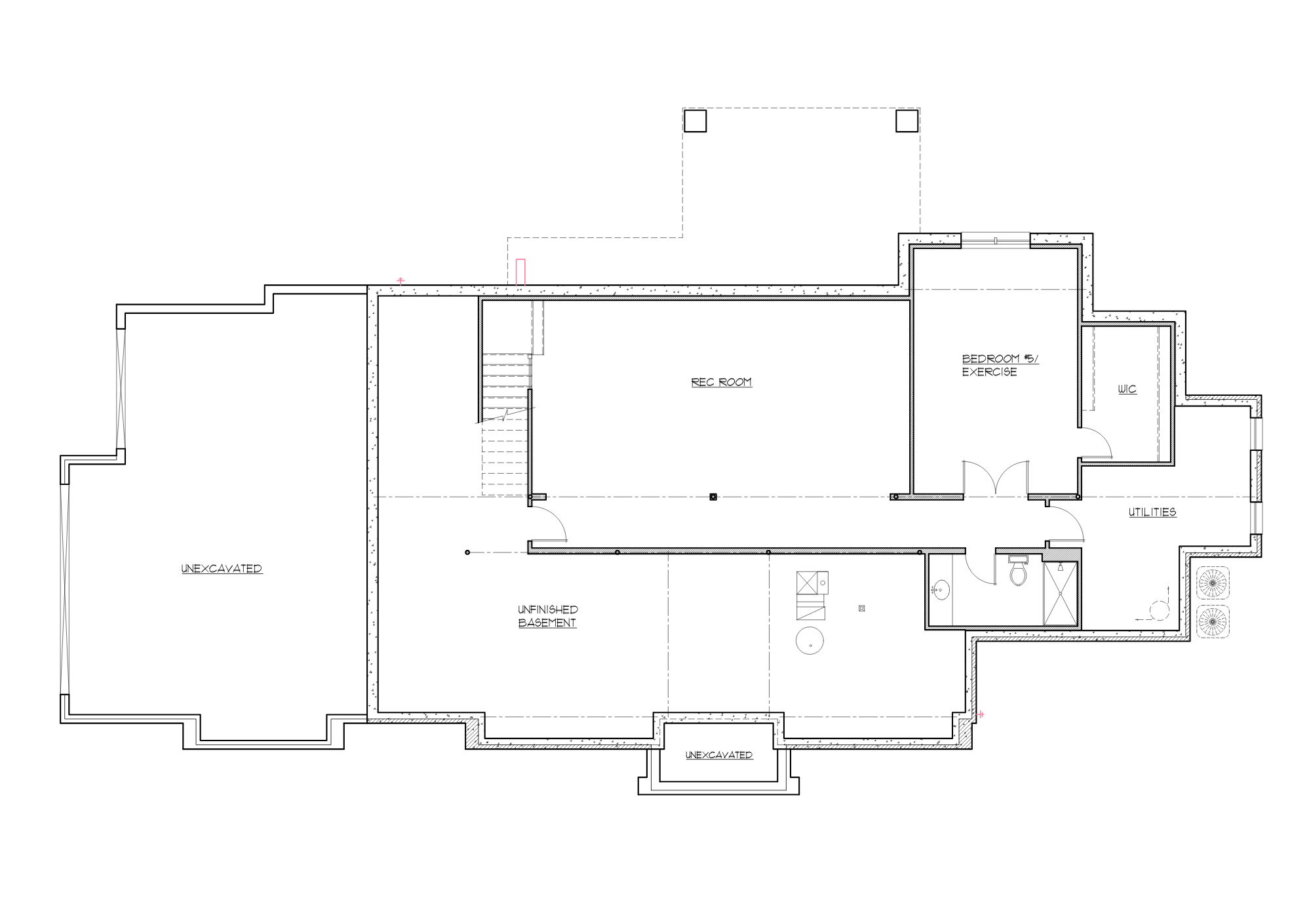
Lower Level

Lower Level Floor Plan

Property Description

New construction home designed by Flower Homes in Richmond Heights. This thoughtfully designed residence offers 3,515 square feet of above-ground living space with an additional finished lower level, totaling 4,570 square feet of luxurious living area.

The main level features an elegant owner's suite with a spa-inspired bath and a convenient powder room. The second floor boasts three generous bedrooms, each with its own private bathroom, providing ultimate privacy and comfort for family and guests. The finished lower level includes a large recreation area perfect for entertaining, a full bedroom with walk-in closet, and a full bathroom.

Additional features include a three-car side entry garage, covered rear porch for outdoor enjoyment, and quality finishes throughout the home. Expected completion Fall 2026.

Be the First to Know

Contact us today to learn more about this exciting new construction project and reserve your opportunity to own this exceptional home.

Call (636) 751-8558